Daniel Schönle Architektur und Stadtplanung
was
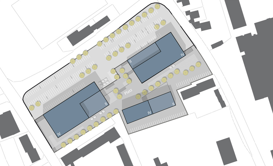
Wettbewerb
Bauhofareal
wo
Freudenstadt
wer
In Kooperation mit
Jarcke Architekten
wann
2010
Freudenstadt, Campus Nord
Schnitt
Lageplan
nächstes Projekt
→